About conversions

About conversions

Find out about the process of a loft conversion including a typical timeline of a conversion.

The benefits of a loft conversion

The benefits of a loft conversion

At the moment it may only be used as a general storage area or somewhere to house the water tank yet with a little imagination and the help of our professional expertise, your loft could be transformed into versatile living area.

Find out more

Is your loft suitable?

Is your loft suitable?

Some roof spaces are more easily converted than others and a full assessment requires professional help. But the untrained eye can often work out the basics.

Find out more

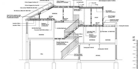
What's involved in a loft conversion?

What's involved in a loft conversion?

Even in a confined loft space, the addition of a couple of VELUX windows can create a surprisingly lighty and airy room that may be ideal as an extra bedroom or a hobby room.

Find out more

Planning permission

Planning permission

Whether you need planning permission for your loft conversion depends entirely upon which type of loft conversion you require: roof line or dormer.

Find out more

Types of loft conversion

Types of loft conversion

There are several types of conversion but most fall into one of two categories: Dormer Conversions and Roofline Conversions.

Find out more

Roofline loft conversions

Roofline loft conversions

This option is generally adequate for those contemplating the smaller loft conversion where adequate height is available within the existing loft space.

Find out more

Dormer loft conversions

Dormer loft conversions

Dormer conversions are ideal for when the existing loft space is limited or is of insufficient size for the proposed conversion.

Find out more

Staircase designs and layouts

Staircase designs and layouts

Each loft conversion is unique and brings with it it's own set of challenges none so more than fitting the staircase. Beyond performing their purpose of providing a passage way, stairs can serve as a powerful design feature.

Find out more

VELUX windows

VELUX windows

Even in a confined loft space, the addition of a couple of VELUX windows can create a surprisingly lighty and airy room that may be ideal as an extra bedroom or a hobby room.

Find out more