Essential facts about loft conversions
Thinking of having a loft conversion? Then read our essential facts that you need to know...

-
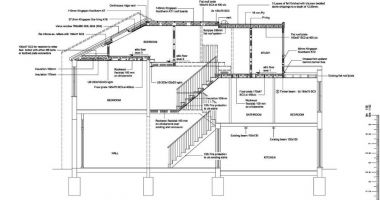
We take care of all the necessary paperwork required i.e. Architects' plans, Structural Engineers drawings and calculations, Planning and Building Regulations.
-
If you wish any alterations i.e. size and position of the bathroom, cupboards, or electrical fittings, this is not a problem, the loft conversion is built uniquely for your requirements.
-
We have public liability insurance of two million; the outside contractors we use are all covered by their own public liability.
-
The outside contractors we use have been with us for as long as we have been in business and are all well established and are listed below.
-
Architectural consultant: John Rowe
-
Structural & civil consulting engineers: Maurice Parker
-
Scaffolding: Skills scaffolding
-
Steel: Westcountry Fabricators
-
Plumber: Dan Pain
-
Electrical work is carried out and completed by a qualified electrician on the TJ Senior Loft Conversions team (Tom)

- When the loft conversion is finished all work is certified and Building Control notified.
- We work Monday - Friday from 8am - 5pm
- Your carpets are covered with a special protective cover, this is fitted in all the working area and removed at the end of the conversion.
- At the end of each day we clean and vacuum to give you the least disruption as possible. We all enjoy our work and take pride in what we do; your home and family will be treated with the utmost respect.
- Our work is carried out to a very high standard, all the work is filmed to show everything is built and installed correctly with no corners cut.
- At the end of the work you will be given a digital copy for your records to remind you of how the loft looked before the work started.
- Building Control will be contacted, at the appropriate times throughout the build for inspection, for example, the fitting of the steel beams, structural work, and insulation, at the end of the conversion he or she will visit for a completion inspection. At this final stage, all the appropriate paperwork will be issued to you.
- We do not leave until you are 100% happy, if you have any questions or problems i.e. doors require adjustment after carpets have been laid during, or after the loft is completed you can call me at any time.